HydroLANDSCAPE 2012: Como representar tubos que se cruzam

27/10/2020 - Augusto

"Ordem e progresso". Uma pequena alteração nesta frase, retirada da bandeira do Brasil, é o ponto central deste artigo: "ordem É progresso".

Ordenar, organizar é também uma forma de padronizar. Todo trabalho técnico deve ser padronizado, pois isto torna os métodos e as ferramentas, universais. Por exemplo, se cada carro tivesse o pedal de freio numa posição diferente, seria muito complicado dirigir um carro diferente do seu. É interessante perceber, também, que a padronização não limitou a criatividade dos projetistas, pois existem centenas de modelos de carros diferentes, mas com o pedal de freio no mesmo lugar.

Quando lidamos com o desenho técnico, o orgão brasileiro que dita as normas que devemos seguir é a ABNT - Associação Brasileira de Normas Técnicas. Graças a estas normas, um projetista conseguem ler o projeto feito por outro.

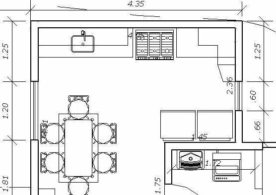
Um exemplo das convenções utilizadas é o uso de espessuras de linhas diferentes para distingüir planos, móveis e paredes. Assim, no desenho abaixo, as paredes estão desenhadas com espessura 0.5mm e as cotas com espessura 0.1mm.



As dimensões das espessuras são baseadas nas antigas canetas nankim que normalmente variam de 0.1mm à 2.0mm. Desse modo, quando desenhávamos na prancheta, usávamos uma caneta 0.5mm para paredes, uma 0.1mm para cotas, uma 0.2mm para móveis, e assim por diante.

Essas espessuras definem as linhas que surgem em um primeiro, segundo, terceiro plano e etc. No caso acima, as paredes, que estão sendo cortadas, foram desenhadas sem linhas grossas (normalmente entre 0,5 e 0,8mm) por estarem num plano muito próximo do olhar do observador. As demais linhas serão desenhadas em espessuras mais finas, de acordo com o aumento da distância em relação ao observador.

E onde entra a tubulação?

O projetista de irrigação muitas vezes desenha os tubos com cores diferentes para que seja fácil diferenciar os diâmetros dos tubos. Estes desenhos são válidos no âmbito do escritório, mas normalmente não servem para uma construtora ou prefeitura, que utilizam o desenho técnico normatizado.

Para o HydroLANDSCAPE não faz diferença a preferência do projetista, o programa lida com as duas formas de trabalhar.



A configuração de cores para tubos no HydroLANDSCAPE busca a simplicidade, portanto os tubos são configurados para ter a cor correspondente ao diâmetro nominal do tubo.

Assim o tubo de 20mm terá a cor 20, e o tubo de 40mm terá a cor 40, no CAD.

O projetista pode escolher as cores para cada tubo clicando em



e depois selecionando a aba Cores, e definindo a cor de cada tubo.



Por outro lado, utilizando tubos monocromáticos é preciso indicar o diâmetro nominal com uma cota (um texto). O HydroLANDSCAPE faz isto de forma automática e o resultado deve ser parecido com o da imagem abaixo:



Abaixo outro exemplo, o mesmo desenho com a tubulação colorida.

Veja Também

  • HydroLANDSCAPE 2012: Como inserir Tubos
  • HydroLANDSCAPE 2012: Como conectar Tubos
  • HydroLANDSCAPE 2012: Como conectar tubos automaticamente
  • HydroLANDSCAPE 2012: Orientação para disposição da tubulaçã
  • HydroLANDSCAP 2012: Como excluir todos os tubos de um projeto
  • HydroLANDSCAPE 2012: Como representar a tubulação
  • HydroLANDSCAPE 2012: Orientação para disposição da tubulaçã

  • Categoria: HydroLANDSCAPE | HydroLANDSCAPE 2012 | HydroLANDSCAPE 2012: Conheça a tela do programa | HydroLANDSCAPE 2012: Aba Tubos | HydroLANDSCAPE 2012: Como representar tubos que se cruzam
    0 ms
    HydroLANDSCAPE
    Conheça o HydroLANDSCAPE, software técnico para projeto de irrigação de paisagismo e áreas rurais
    Quero conhecer